Проект дома 140 кв.м 2 этажа

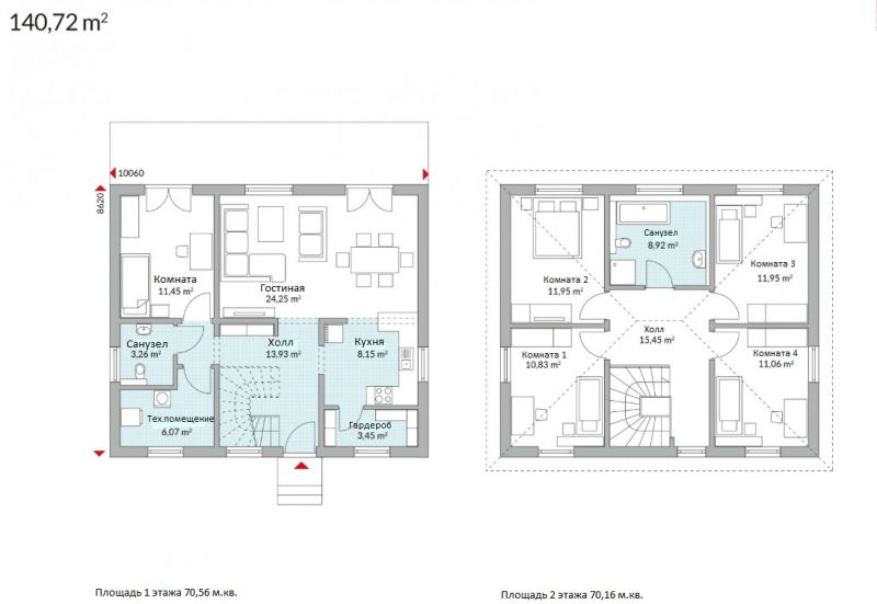
Площадь дома - 140 кв.м., 2 этажа.

Двухэтажный дом с шестью комнатами, открытой кухней, кладовой, ванной комнатой, гостевым туалетом, подсобным помещением и прихожей. Шатровая крыша с уклоном крыши 22 °.

Строительство возможно из следующих материалов:

1. Каркас ЛСТК, стены монолитный пенобетон;
2. Газобетон;
3. Керамический блок (кирпич теплая керамика);

Варианты комплектации:

«Коробка»
«Теплый контур»
«Под чистовую отделку»

от 15 000 р/м2

Фундамент

монолитная - плита 200-350 мм (в зависимости от проекта и геологии)

Несущие стены

газобетон, теплая керамика, ЛСТК пенобетон

Перекрытия

монолитный ж/б или сборно монолитные

Кровля

стропильная система покрытие металлочерепица

от 23 500 р/м2

Фундамент

монолитная - плита 200-350 мм (в зависимости от проекта и геологии)

Несущие стены

газобетон, теплая керамика, ЛСТК пенобетон

Отделка фасада

штукатурка Baumit

Отделка цоколя

knauf КНАУФ-Зокельпутц, окраска

Перекрытия

монолитный ж/б или сборно монолитные

Кровля

стропильная система покрытие металлочерепица, утепление 200 мм, подшив свесов кровли, водосточная система

Окна 

металлопластиковые

Дверь входная

металлическая

Дымовентиляционная система

Schiedel

от 28 500 р/м2

Фундамент

монолитная - плита 200-350 мм (в зависимости от проекта и геологии)

Несущие стены

газобетон, теплая керамика, ЛСТК пенобетон

Отделка фасада

штукатурка Baumit

Отделка цоколя

knauf КНАУФ-Зокельпутц, окраска

Перекрытия

монолитный ж/б или сборно монолитные

Кровля

стропильная система покрытие металлочерепица, утепление 200мм, подшив свесов кровли, водосточная система

Инженерные системы

электромонтаж и сантехн. монтаж труб

Лестница

монолитная ж/б

Перегородки

100 мм

Отделка

штукатурка и окраска стен и потолков

Окна 

металлопластиковые

Дверь входная

металлическая

Дымовентиляционная система

Schiedel

*Точная стоимость строительства определяется по запросу коммерческого предложения, с учетом места строительства, привязки к земельному участку, выбору материалов дома и комплектации, наличия или отсутствия сетей водоснабжения, газоснабжения и канализации на участке. С учетом необходимости строительства и подключения автономных инженерных сетей.