Проект дома 127 кв.м
Площадь дома -127 кв.м., 2 этажа, КУБ.
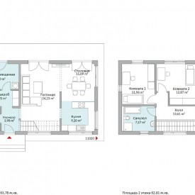
Двухэтажный дом с четырьмя комнатами, гардеробной, открытой кухней, ванной комнатой, туалетом для гостей, техническим залом, гардеробной и прихожей. Плоская,мягкая, наплавляемая кровля.
Строительство возможно из следующих материалов:
1. Каркас ЛСТК, стены монолитный пенобетон;
2. Газобетон;
3. Керамический блок (кирпич теплая керамика);
Варианты комплектации:
от 15 000 р/м2
|
Фундамент |
монолитная - плита 200-350 мм (в зависимости от проекта и геологии) |
|
Несущие стены |
газобетон, теплая керамика, ЛСТК пенобетон |
|
Перекрытия |
монолитный ж/б или сборно монолитные |
|
Кровля |
перекрытие кровли, мягкая наплавляемая кровля Унифлекс |
от 23 500 р/м2
|
Фундамент |
монолитная - плита 200-350 мм (в зависимости от проекта и геологии) |
|
Несущие стены |
газобетон, теплая керамика, ЛСТК пенобетон |
|
Отделка фасада |
штукатурка Baumit |
|
Отделка цоколя |
knauf КНАУФ-Зокельпутц, окраска |
|
Перекрытия |
монолитный ж/б или сборно монолитные |
|
Кровля |
перекрытие кровли, мягкая наплавляемая кровля Унифлекс, утепление 200 мм, водосточная система |
|
Окна |
металлопластиковые |
|
Дверь входная |
металлическая |
|
Дымовентиляционная система |
Schiedel |
от 28 500 р/м2
|
Фундамент |
монолитная - плита 200-350 мм (в зависимости от проекта и геологии) |
|
Несущие стены |
газобетон, теплая керамика, ЛСТК пенобетон |
|
Отделка фасада |
штукатурка Baumit |
|
Отделка цоколя |
knauf КНАУФ-Зокельпутц, окраска |
|
Перекрытия |
монолитный ж/б или сборно монолитные |
|
Кровля |
перекрытие кровли, мягкая наплавляемая кровля «Унифлекс», утепление 200 мм, водосточная система |
|
Инженерные системы |
электромонтаж и сантехн. монтаж труб |
|
Лестница |
монолитная ж/б |
|
Перегородки |
100 мм |
|
Отделка |
штукатурка и окраска стен и потолков |
|
Окна |
металлопластиковые |
|
Дверь входная |
металлическая |
|
Дымовентиляционная система |
Schiedel |
*Точная стоимость строительства определяется по запросу коммерческого предложения, с учетом места строительства, привязки к земельному участку, выбору материалов дома и комплектации, наличия или отсутствия сетей водоснабжения, газоснабжения и канализации на участке. С учетом необходимости строительства и подключения автономных инженерных сетей.